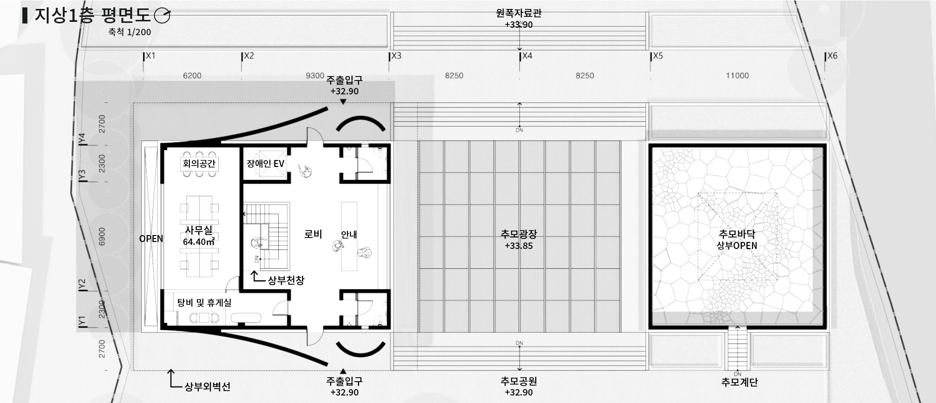
[ARCHITECTURE]경남 원폭피해자 추모시설

d28348218fdd8.jpg

ARCHITECTURE

기억을 밟다_추모의 여정

건축은 단순히 물리적인 공간을 넘어 그 안에 담긴 감정과 기억을 전하는 역할을 한다. 추모관에서는 원폭 피해자들의 고통과 상실, 흔적을 마주하며 그것을 되새기고 평화와 치유의 메시지를 전달하고자 한다. 각기 다른 시각적 요소와 감각적 경험을 통해 방문객들은 고통 속에서 잊지 말아야 할 역사를 기억하고, 그 기억이 단순한 과거의 이야기가 아니라 오늘을 살아가는 우리의 책임이자 미래로 이어져야 할 '기억의 계속성' 에 대하여 이야기 하고자한다.

위치경상남도 합천군 한천읍 영창리 443번지 외3
용도자연녹지지역
대지면적4,618㎡
건축면적3,22.74㎡
연면적611.42㎡
발주처김재철 , 이혜원


e9a81619e9fba.jpg

de17211300fba.jpg

30ece0b8995bc.jpg

6d74eb6702d68.jpg

8fd3b2a5ffee8.jpg  66aa6232e2793.jpg036e51686385a.jpg5038a77ddca6f.jpgd6b33f629cf3f.jpg 

GGGB ARCHITECTS
지지지비 건축사사무소

Copyright © 2023 GGGB ARCHITECTS. All rights reserved.

GGGB ARCHITECTS
지지지비 건축사사무소

Copyright © 2023 GGGB ARCHITECTS. All rights reserved.