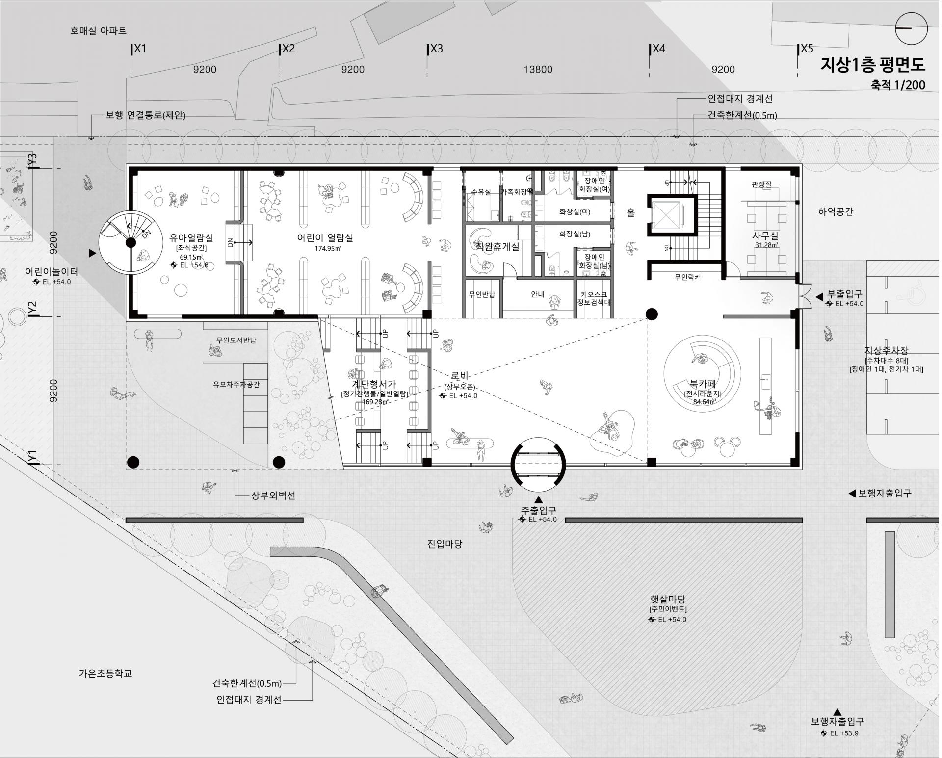
ARCHITECTURE
공원을 품은 도서관
어린이 공원으로 사용되고 있는 이형의 대지 공원을 없애고 새로운 도서관을 워한 공간이 될 수도 있겠지만 모퉁이 땅이 주민들의 공원으로 계속 유지되길 바라며 공원의 성격을 그대로 가진 채 대지를 리노베이션 하였다.
기존의 공원의 동선,모래,잔디,식재, 어린이 놀이터는 그대로 유지된 채 도서관과 함께 관계를 가지게 된다.
@gggbarchitects | 031-8094-3114 | 0123gggb@gmail.com
Copyright © 2023 GGGB ARCHITECTS. All rights reserved.
@gggbarchitects|031-8094-3114|0123gggb@gmail.com
ARCHITECTURE
공원을 품은 도서관
어린이 공원으로 사용되고 있는 이형의 대지 공원을 없애고 새로운 도서관을 워한 공간이 될 수도 있겠지만 모퉁이 땅이 주민들의 공원으로 계속 유지되길 바라며 공원의 성격을 그대로 가진 채 대지를 리노베이션 하였다.
기존의 공원의 동선,모래,잔디,식재, 어린이 놀이터는 그대로 유지된 채 도서관과 함께 관계를 가지게 된다.